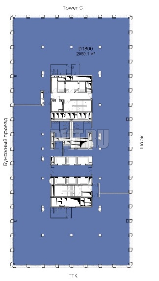
Офис, 2 070 м², открытая планировка, готово к въезду

Характеристики помещения

Площадь

2 070 м²

Этаж целиком

Да

Парковка

Подземная

Есть кондиционирование

Да

1 235 790 000 ₽

597 000 ₽/м²

Связаться с нами

Коммерческие условия

Договор

Продажа

Налогообложение

НДС

A

Класс

14

Налоговая

2022 г.

Год постройки

14 575 м²

Общая площадь

11

Количество этажей

Вы можете записаться на просмотр интересующей вас площади